中古住宅 長野県長野市大字茂菅
- 価格190万円
- 土地面積405.58m2
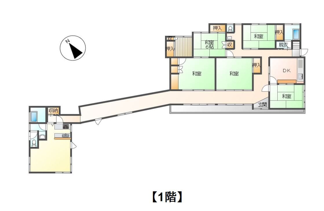
- 間取9DK
- 建物面積145.21m2
- 通学区長野市立加茂小学校(1402m)
長野市立西部中学校(1369m)
最終更新日 2025年11月02日
高台で見晴らしのいい立地!長野市茂菅の豊かな自然に囲まれた環境と心安らぐ住まい♪
お好みに合わせてリフォームもおすすめしています♪
ミヤモリ不動産(株) 長野店 中古住宅専門店おらんち
026-243-0001
ココスマを見てとお伝えください
地図・周辺環境
※物件位置が表示されていない場合があります。
また特に外部リンク先のGoogleマップでは、実際とは異なる位置が表示される場合があります。
物件の正確な位置は必ず取扱い会社へお問合せください。
ミヤモリ不動産(株) 長野店 中古住宅専門店おらんち
026-243-0001
ココスマを見てとお伝えください
物件詳細
| 価格 | 190万円 |
|---|---|
| 土地面積 | 405.58m²(公簿) / 122.68坪 |
| 建物面積 | 145.21m² / 43.92坪 |
| 間取 | 9DK |
| 所在地 | 長野市大字茂菅 |
| 通学区 | 長野市立加茂小学校(1402m) 長野市立西部中学校(1369m) |
| 交通 | 電車:長野電鉄長野線権堂駅 徒歩39分 バス:県道戸隠線 バス停茂菅 徒歩1分 |
| 備考 | ●加茂小学校・西部中学校エリア! ●高台で約122坪の広い敷地 ●駐車1台可 ●バス停「茂菅」まで徒歩1分の距離 ・再建築不可 ・残置物撤去予定 ・売主免責不適合 2階部分増築 未登記 ・土砂災害特別警戒区域(急傾斜地) ・土砂災害警戒区域(地すべり) ~~近隣施設~~ ・綿半スーパー権藤店 車8分 ・セブン-イレブン 西長野店 車3分 ・ウエルシア長野三輪店 車10分 □■□中古専門店おらんちなら□■□ ・探しはじめの方にも安心の相談から資金計画、物件案内もサービス! ・お客様に合わせた資金計画、物件に合わせた資金計画のご提案! ・自社工事もお任せください!業者を見てまわるひと手間なくしましょう♪ ・月平均10件の新規物件を取り扱い♪ほかの物件もお任せください! 無理な営業は致しません! まずはお気軽にご相談からお待ちしております! |
| 建物構造 | 木造 |
| 建物概要 | 地上2階 |
| 駐車場 | 有 台数:1台あり |
| 下水 | 公共下水道 |
| 完成年月日 | 1967年12月 |
| 土地権利 | 所有権 |
| 接道状況 | 方角:南 公私区分:公道 |
| 設備 | 上水道・下水道 |
| 取引態様 | 専任媒介 |
| 手数料 | 手数料必要 |
| 引渡し/入居日 | 相談 |
| 管理番号 | 1861 |
| 物件番号 | 446813 |
| 最終更新日 | 2025-11-02 |




















