住宅用土地 長野県須坂市大字日滝
- 価格1610万円
- 坪単価26.7576万円
- 土地面積198.92m2
- 建蔽/容積50%/80%
- 通学区須坂市立日滝小学校(578m)
須坂市立常盤中学校(856m)
最終更新日 2025年12月10日
(株)住まいのセンター
026-248-1076
ココスマを見てとお伝えください
地図・周辺環境
※物件位置が表示されていない場合があります。
また特に外部リンク先のGoogleマップでは、実際とは異なる位置が表示される場合があります。
物件の正確な位置は必ず取扱い会社へお問合せください。
(株)住まいのセンター
026-248-1076
ココスマを見てとお伝えください
物件詳細
| 価格 | 1610万円 |
|---|---|
| 坪単価 | 26.7576万円 |
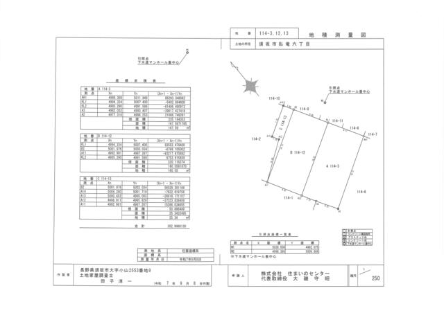
| 土地面積 | 198.92m²(公簿) / 60.17坪 |
| 所在地 | 須坂市大字日滝 |
| 通学区 | 須坂市立日滝小学校(578m) 須坂市立常盤中学校(856m) |
| 交通 | 電車:長野電鉄長野線須坂駅 徒歩21分 |
| 都市計画 | 市街化区域 |
| 用途地域 | 1種低層 |
| 地目 | 宅地 |
| 建蔽率 | 50% |
| 容積率 | 80% |
| 下水 | 公共下水道 |
| 最適用途 | 住宅用土地 |
| 土地権利 | 所有権 |
| 設備 | プロパンガス・上水道・下水道 |
| 取引態様 | 売主 |
| 引渡し/入居日 | 即可能 |
| 物件番号 | 447949 |
| 最終更新日 | 2025-12-10 |











