中古住宅 長野県長野市信州新町越道 信州新町越道売土地建物
- 価格320万円
- 土地面積1231.08m2
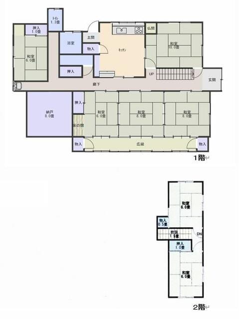
- 間取7K(和 10・8・8・6・6・6・6)
- 建物面積176.64m2
最終更新日 2026年03月20日
信濃鶴田不動産(株)
026-217-1586
ココスマを見てとお伝えください
地図・周辺環境
※物件位置が表示されていない場合があります。
また特に外部リンク先のGoogleマップでは、実際とは異なる位置が表示される場合があります。
物件の正確な位置は必ず取扱い会社へお問合せください。
信濃鶴田不動産(株)
026-217-1586
ココスマを見てとお伝えください
物件詳細
| 価格 | 320万円 |
|---|---|
| 土地面積 | 1231.08m²(公簿) / 372.4坪 |
| 建物面積 | 176.64m² / 53.43坪 |
| 間取 | 7K(和 10・8・8・6・6・6・6) |
| 所在地 | 長野市信州新町越道 |
| 建物名 | 信州新町越道売土地建物 |
| 交通 | バス:バス停古宿下 距離80m 徒歩1分 |
| 建物構造 | 木造 |
| 建物概要 | 地上2階 |
| 駐車場 | 有 無料 |
| 完成年月日 | 1975年11月 |
| 土地権利 | 所有権 |
| 設備 | 温水洗浄便座・庭・照明器具付き・プロパンガス・上水道・駐車場3台分 |
| 取引態様 | 専任媒介 |
| 引渡し/入居日 | 相談 |
| 物件番号 | 448336 |
| 最終更新日 | 2026-03-20 |


























