事務所 長野県長野市平林2丁目
- 賃料5.8万円
- 共/礼/敷12000円/なし/2ヶ月
- 保証金
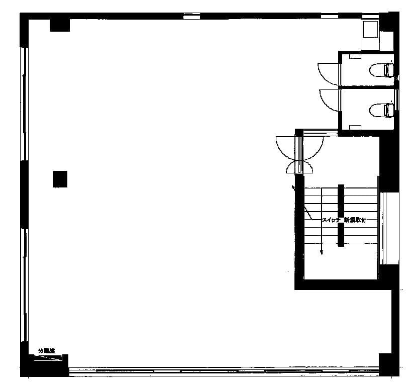
- 専有面積 54m² / 16.33坪
最終更新日 2026年04月24日
マルゴ開発(株)
026-229-5111
ココスマを見てとお伝えください
地図・周辺環境
※物件位置が表示されていない場合があります。
また特に外部リンク先のGoogleマップでは、実際とは異なる位置が表示される場合があります。
物件の正確な位置は必ず取扱い会社へお問合せください。
マルゴ開発(株)
026-229-5111
ココスマを見てとお伝えください
物件詳細
| 賃料 | 5.8万円 |
|---|---|
| 礼金 | なし |
| 敷金 | 2ヶ月 |
| 共益費 | 12000円 |
| 専有面積 | 54m² / 16.33坪 |
| 所在地 | 長野市平林2丁目 |
| 交通 | 電車:長野電鉄長野線桐原駅 徒歩18分 |
| 建物構造 | 鉄骨造 |
| 建物概要 | 地上7階 2階部分 |
| 駐車場 | 有 有料 有料一台:4000円/月 |
| 完成年月 | 1981年4月 |
| 契約期間 | 3年 |
| 設備 | トイレ・エアコン・飲食店不可・給湯・エレベーター・動力あり |
| 取引態様 | 一般媒介 |
| 引渡し/入居日 | 即可能 |
| 管理番号 | 40026 |
| 物件番号 | 435957 |
| 最終更新日 | 2026-04-24 |

















