中古住宅 長野県長野市大字北堀
- 価格1590万円
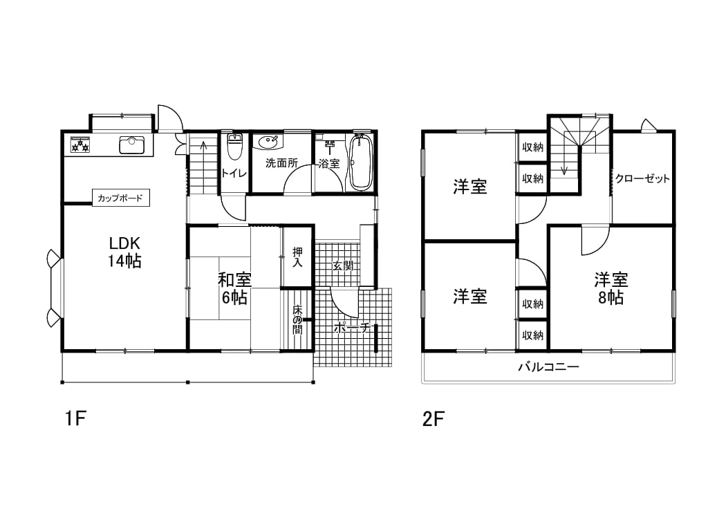
- 土地面積175.58m2
- 間取4LDK
- 建物面積101.86m2
- 通学区長野市立吉田小学校(1400m)
長野市立東部中学校(1900m)
最終更新日 2026年03月21日
最寄り駅まで徒歩10分!長野市北堀の閑静な住宅地に建つ中古戸建です!
ゆとりある間取りでファミリーにもオススメです♪
☆たっぷり収納できる「ファミリークローゼット」あり!
季節ごとの衣類や家族の荷物をすっきりまとめて収納できます
☆南側道路(幅員6m)に面した、落ち着いた住環境♪
☆大切なお車を守る「カーポート付き」!普通車2台駐車可能
☆自分好みの空間に!
リフォームやリノベーションのベース物件としてもおすすめです!
■LOCATION
●朝陽駅前簡易郵便局まで 徒歩10分(800m)
●みかさ幼稚園まで 徒歩11分(850m)
●デリシア吉田店まで 徒歩11分(850m)
●セブンイレブン長野南堀店まで 徒歩12分(900m)
●山田記念朝日病院まで 徒歩13分(1000m)
●ウエルシアIKONE City長野稲田店まで 徒歩14分(1100m)
●DCM長野運動公園店まで 徒歩15分(1200m)
●長野運動公園 総合運動場まで 徒歩18分(1400m)
サンプロ不動産(株)長野店
担当:宮嶋 茜
0120-36-3399
ココスマを見てとお伝えください
地図・周辺環境
※物件位置が表示されていない場合があります。
また特に外部リンク先のGoogleマップでは、実際とは異なる位置が表示される場合があります。
物件の正確な位置は必ず取扱い会社へお問合せください。
サンプロ不動産(株)長野店
担当:宮嶋 茜
0120-36-3399
ココスマを見てとお伝えください
物件詳細
| 価格 | 1590万円 |
|---|---|
| 土地面積 | 175.58m²(公簿) / 53.11坪 |
| 建物面積 | 101.86m² / 30.81坪 |
| 間取 | 4LDK |
| 所在地 | 長野市大字北堀 |
| 通学区 | 長野市立吉田小学校(1400m) 長野市立東部中学校(1900m) |
| 交通 | 電車:長野電鉄長野線朝陽駅 距離750m 徒歩10分 電車:しなの鉄道北しなの長野駅 距離1600m 徒歩20分 バス:ぐるりん線 バス停南堀西 距離430m 徒歩6分 |
| 備考 | ※契約不適合責任免責 |
| 建物構造 | 木造 |
| 建物概要 | 地上2階 |
| 駐車場 | 有 台数:2台あり |
| 下水 | 公共下水道 |
| 完成年月日 | 1993年12月 |
| 施工会社 | ミサワホーム株式会社 |
| 土地権利 | 所有権 |
| 接道状況 | 方角:南 道路幅員:6m 公私区分:公道 接面:12.49m |
| 設備 | バス1坪以上・庭・バルコニー・日当り良好・閑静住宅街・建築確認完了検査済証・照明器具付き・都市ガス・上水道・下水道・電気・駐車場2台分 |
| 取引態様 | 専任媒介 |
| 引渡し/入居日 | 相談 |
| 管理番号 | 15493 |
| 物件番号 | 451286 |
| 最終更新日 | 2026-03-21 |





















































